Nhà Phố 5 Tầng Hiện Đại 4x18m

Nhà phố 5 tầng kết hợp kinh doanh

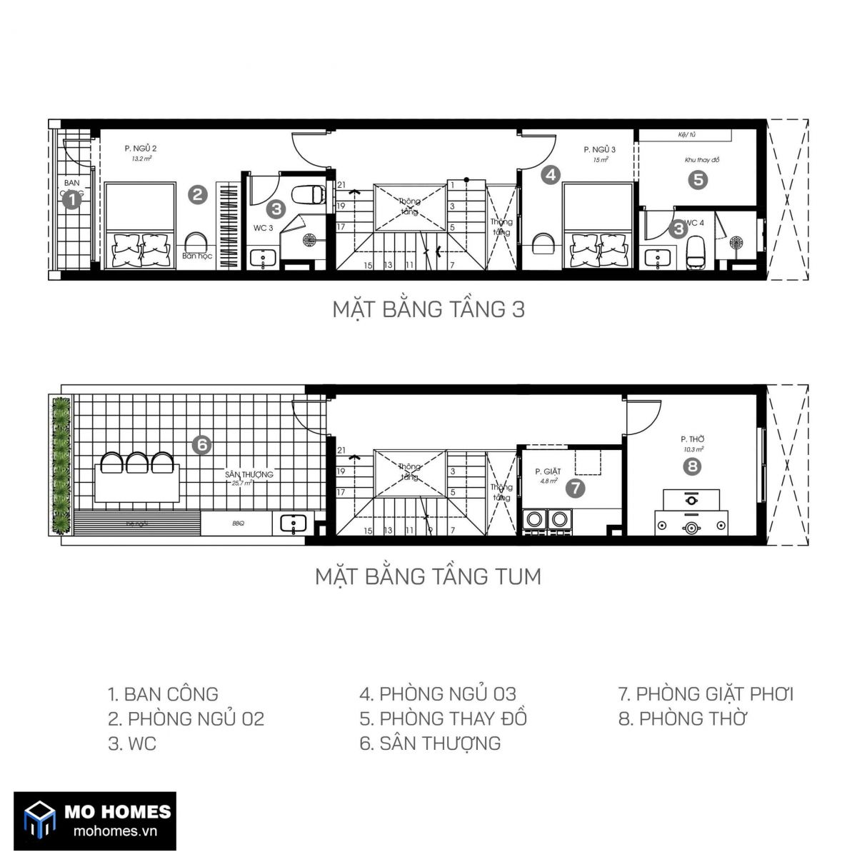
Bản vẽ nhà phố 5 tầng 4x18m

Quy Trình Làm Việc Tại Mo Homes®: Tư Vấn – Thiết Kế 3D – Thi Công – Bàn Giao

Cam Kết Chất Lượng, Tiến Độ & Chi Phí Minh Bạch Cho Mỗi Công Trình
Liên Hệ Mo Homes® Để Được Tư Vấn & Báo Giá Thiết Kế – Xây Dựng Miễn Phí

Nhà Phố 5 Tầng Hiện Đại 4x18m

Trang chủ Nhà Phố 5 Tầng Hiện Đại 4x18m

Thông tin dự án:

 Tên dự án: T House                                       
 Địa điểm: TP. Hồ Chí Minh
 Loại hình: Nhà phố
 Số tầng: 5 tầng
 Phong cách: Hiện đại
 Diện tích đất: 4 x18m
 Diện tích xây dựng: 550m²
 Vật liệu: Gói vật tư chất lượng cao
 Ngân sách thiết kế và xây dựng:                                    Liên hệ 0986 898 930                                                                      

          

Thiết kế 3D công trình nhà phố:

icon Zalo icon Whatsapp icon Messenger
×
Đăng nhập

Đăng nhập

Bạn chưa có tài khoản ? Đăng ký

Quên mật khẩu

Đăng ký tài khoản

Đăng ký

Bạn đã có tài khoản ? Đăng nhập

captcha

Lấy mật khẩu

Bạn chưa có tài khoản ? Đăng ký